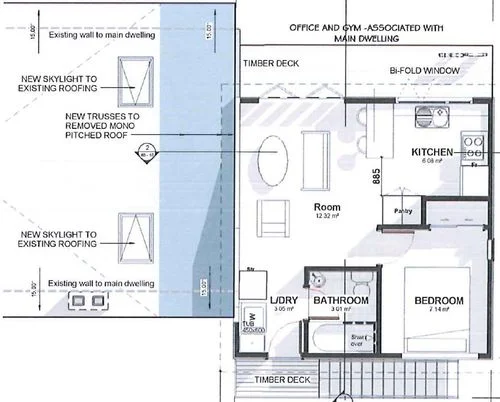
RANGITIRA 72m2

1 Bedroom | Bathroom | Kitchen | Lounge | 1 Laundry | Gym | Office

Designed for Mum to be close, but retain her independence this 36m2 minor dwelling upstairs includes every space she needs for comfortable living. While downstairs  36m2 of gym and office provide great space for a growing family. 

What problem did the client need help with?

Spencer and Keeley had 3 issues that needed resolving. The main issue was they wanted to have Keeley's mum living on site with them and they also needed a home office and a garage for the car.

 What was the process we took to solve it?

The first hurdle was to get Resource Consent for the Minor Dwelling in the front yard. Our Town Planner successfully gained consent and we designed a bespoke solution that solved all 3 issues.

We had to use creative solutions to overcome the height to boundaries and being attached to the existing house we needed to make sure the family wasn't inconvenienced in the building process.

What was the end result?

The end result was everyone was happy. Keeley's mum loves her self contained apartment with a sunny deck and beautiful views over the upper harbour. The kids are happy with nana around to spoil them, Keeley has a home office complete with baby sitter upstairs and the car has got a nice warm shelter. There even enough room for Spencer to have his gym gear set up.